 
         
                Terrain 699 m² 699 m²
Sainte-Suzanne (97441)A propos de ce bien
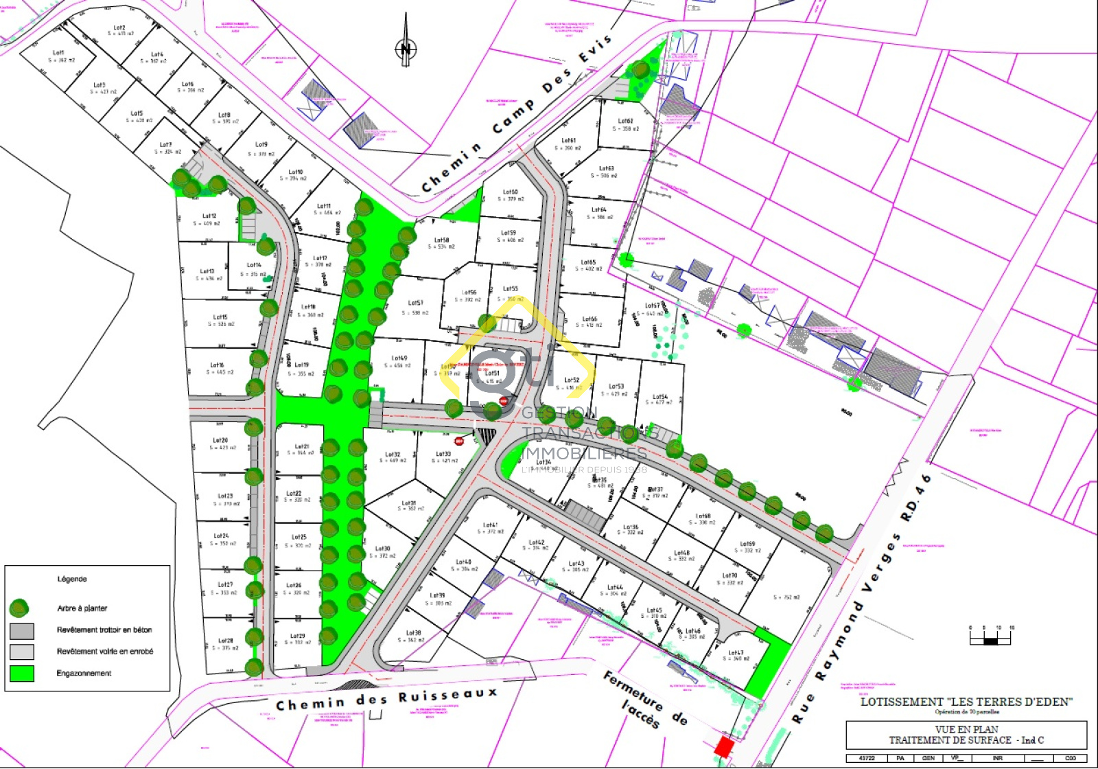
L'agence GTI, spécialiste de la vente de terrains à La Réunion, vous propose un nouveau lotissement de qualité. Situé à Quartier Français, secteur Camp des Evis, LES TERRES D'EDEN est un lotissement idéalement placé sur les premières hauteurs à 2 minutes du centre commercial GRAND EST et des accès 4 voies. Ce lotissement situé en zone Ua propose 70 parcelles de 302 m² à 640 m². Situé dans un secteur zone encore peu urbanisé, on y profite de la verdure environnante et d'une belle vue, notamment sur nos montagnes. Que vous souhaitiez construire votre habitation principale ou investir avec pour finalité la location et/ou la défiscalisation, n'hésitez pas à nous contacter. Nous sommes à votre disposition pour toute information et réservation. A partir de 99 990€
Zone Ua au PLU
HAUTEUR MAXIMALE 16 mètres au faitage
EMPRISE AU SOL Sans objet
LIVRAISON SEPTEMBRE 2020
Les informations sur les risques auxquels ce bien est exposé sont disponibles sur le site Géorisques
Caractéristiques de ce bien
- terrain 699 m²
 
             
                                 
                                 
                                 
                                 
                                 
                                